西式快餐

茶点、咖啡厅
选择风机时,计算风量×1.1确定最终风机风量,排油烟风机选型公式为:
G1≥(40-60)×S×h
其中 S为厨房面积m2; h为厨房结构板下净高; G1为排油烟风机的排风量m3/h。
2)水平管路风速按照8-10m/s计算,垂直管道风速按照≤12m/s计算。静电油烟处理设备通过风速控制在2.5m/s,如设置消声器,消声器(阻力按照50Pa计算)通过风速控制在≤7m/s。
3)现代商业屋面较复杂,本身有高低差,有运动活动场地、屋面钢架、绿化地面,设备繁多:一般有冷却塔、风冷VRV外机、冷库外机、排风风机、排烟风机、新风机组、全热交换新风机组、太阳能集热板、消防及太阳能水箱、强弱电桥架、燃气管道等。屋面防水工程一直是建筑质量验收的重中之重,油烟净化设备及风机应提前考虑布置,距离目标敏感设备设施(新风机组、冷却塔、VRV外机)应≥10m间距布置,且布置在靠屋面女儿墙位置为佳,排风口应向高空排放;
03
排油烟系统风机全压计算
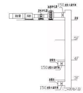
1)选择某特定餐饮的厨房,按照该厨房位于屋顶风机最远端,靠近外墙且最不利处为厨房烟罩最不利处来计算。
2)排油烟风机的全压控制在400-950Pa为宜。
3)排油烟系统风机全压的估算:
∆P=∆pm×(1+k)×L+∆P1+∆P2
其中,
L--风管总长度,指从最不利烟罩点至屋面风机出口直至屋面排油烟口的总长度;
k--管网局部阻力和沿程阻力的比值;弯头和配件阻力较少时,k=1.5;较多时k=2.5;
∆pm--单位长度风管沿程压力损失,根据假定流速法,先初选风管尺寸,风管尺寸确定后,根据实际流速、风管尺寸选定;
∆P1--油烟净化器的阻力(根据目前市场上的油烟净化器一般取100Pa);
∆P2--消声器的局部阻力(一般取50Pa);
按此公式计算出的风机全压一般少许偏大,抽力偏大对提高排油烟系统净化效果有利。

图1 排油烟系统图
来源:筑龙暖通
版权归原作者所有 如有侵权请联系我们返回搜狐,查看更多